联系我们
- 上海首立实业有限公司
- 公司地址:上海市闵行区古美路1471号华城广场307室
- 公司传真:86-21-54933358-813
- 联系QQ:

扫一扫,立刻沟通
你的位置:首页 > 产品展示 > HORIBA(过程&环境) > 水处理及环境 >自动总氮・总磷检测装置
产品详细页
自动总氮・总磷检测装置
- 产品型号:TPNA-300
- 更新时间:2024-03-18
- 产品介绍:自动总氮・总磷检测装置 TPNA-300总氮・总磷。满足总量控制要求。
- 在线留言 86-21-54933058/54933060/54933358/54182486/28097339
产品介绍
自动总氮・总磷检测装置
产品概要
TPNA-300 
总氮・总磷。满足总量控制要求。
| 试剂消耗量的减少 |
|
| 纯水使用量的减少 |
|
| 更换部件的减少 |
|
| 检测废液的减少 |
|
| 消耗电力的降低 |
|
产品性能
■由于主体的小型化,可以放置在室外设置用CA色架台上。也可以和UV计(OPSA-120)一起放置。
■内置污浊负荷量运算功能,如果输入流量信号,就可以对总氮・总磷的污浊负荷量进行运算。
■即使试料水中有海水混入,也可以进行准确的检测。
■1台可以同时连续检测总氮、总磷2种成分浓度。
■由于采用紫外线氧化分解法,在低温(100℃以下)、常压条件下可以进行前处理,所以和原来的高压蒸汽法相比较,维护性得到了提高。
■可以保证与原来手动分析方法之间具有较高的关联性,可以确保数据的连贯性。
■装备有重视使用便利性的多样化功能。
・自动零点补偿(各次检测)
・自动校正功能(可以设定校正频率)
・自我诊断功能(打印输出异常内容)
・外部控制功能
・数据存储功能(2个月部分)
・通过1次式进行手动分析换算(通过与手动分析值之间的关联式,可以换算成手动分析值)
・总氮・总磷水质污浊负荷量运算功能
・海水补偿功能。(可选项) 取得<第3093633号>
■具有多个、使用方便,*追求可靠性!
检测流程

产品技术规格
测量原理 | 全氮: |
|---|---|
检测量程 | 〔标准量程〕 |
检测量程数 | 1量程(标准) |
检测点数 | 1点(标准)、2点(可选项) |
检测时间 | 60分钟 |
反复性 | 全标度的±3%以内(标准量程・1段稀释量程) |
试样水条件 | 温度:2〜40℃ |
BLANK水条件 | 使用量:50L/月 *但是,根据检测量程将会有所增减。 |
模拟输出 | 检测值:和检测点相同数DC4〜20/0〜16mA可切换 |
模拟输入 | 流量计输入 |
接点输入 | 检测开始・校正开始・强制开始・时刻修正 |
接点输出 | 检测中线1(线2为可选项)・校正中・待机中・维修保养中・电源断 |
通信输出 | RS-232C输出 |
电源 | AC100V±10V 50/60Hz 约400VA以下 |
重量 | 约80kg |
外形尺寸 | 460(W)×380(D)×1500(H)mm |
喷涂色 | 孟塞尔色标5PB8/1(相应等级) |
周围温度・湿度 | 2〜40℃ |
设置环境条件 | 必须要在室内、换气良好。没有阳光直射的场所。 |
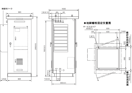
外形尺寸图(单位mm)
■ 内置纯水罐型、内置纯水制造装置型

※溢流槽的安装位置可以选定在左右侧面以及背面的任何一处位置。
■外装纯水制造装置型 (维护空间)

■ UV计一体型

■屋外架台












